Projekty wnętrz Pałacu Kultury | Roman Machowiak | 1967–1972 | CK Zamek

zamknij wstęp
do kolekcji
Powrót
Kolekcja nadrzędna: Pałac Kultury | 1962–1980 | CK Zamek
Projekty wnętrz Pałacu Kultury | Roman Machowiak | 1967–1972 | CK Zamek
Liczba obiektów:
123
Właściciel:
Lokalizacja:

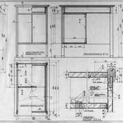
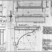
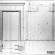
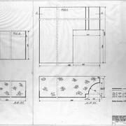
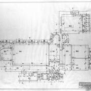
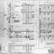
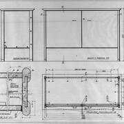
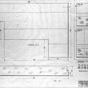
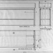
Poznański architekt wnętrz Roman Machowiak (1927–2016) na przełomie lat 60. i 70. XX wieku stworzył dla zamku (ówczesnego Pałacu Kultury) serię rysunków projektowych i inwentaryzacyjnych. Zostały wykreślone ręcznie przy użyciu rapidografu, pisaka z cienką igiełką na końcu napełnionego tuszem i kreślącego, w zależności od rodzaju, linie różnej grubości. Projekty Machowiaka są ciekawą próbą przełamania konwencji narodowo-socjalistycznej i dopasowania stylistyki modernistycznej do zastanej architektury zamku przebudowanego w czasie II wojny światowej na rezydencję Hitlera.
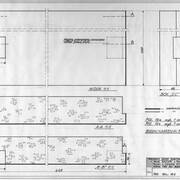
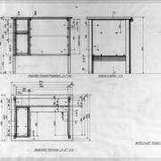
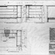
Rysunki można podzielić na kilka grup. Pierwszą stanowi, jak informują metryki plansz, Projekt wnętrza przy Sali Kominkowej. Ten opis budzi jednak wątpliwości. Pomieszczenie w kształcie przedstawianym przez Machowiaka istnieje w zamku, ale znajduje się piętro niżej, w pobliżu Sieni Przejazdowej. Rysunki mogą więc być błędnie opisane przez projektanta lub rzeczywiście dotyczyły niezrealizowanego pomieszczenia przy Sali Kominkowej. Druga grupa to projekty i rysunki inwentaryzacyjne Gabinetu Metodycznego Pałacu Kultury, czyli zespołu pomieszczeń na drugim piętrze zamku w pobliżu Sali Audiowizualnej (także zaprojektowanej przez Machowiaka) służących pracowniom działającym w instytucji. Są to rysunki portalu prowadzącego z obecnego Holu Kasetonowego do Sali Audiowizualnej, inwentaryzacja pomieszczeń w jej sąsiedztwie oraz projekty mebli do pracowni. Do trzeciej grupy rysunków zaliczamy zestaw projektów zachowanej balustrady klatki schodowej prowadzącej z obecnego Holu Kasetonowego na drugim piętrze zamku na piętro trzecie, a ostatnim zbiorem są rysunki inwentaryzacyjne istniejących wnętrz i detali architektonicznych w zachodnim skrzydle zamku. Wszystkie pokazane w tej ostatniej grupie elementy to wyposażenie z czasów nazistowskiej przebudowy gmachu.
CYRYL publikuje rysunki i projekty Machowiaka z ogólnymi metadanymi, po szczegółowe opisy odsyłamy do nowej mediateki CK Zamek https://mediateka.ckzamek.pl/object/projekty-romana-machowiaka/

Maciej Szymaniak

Sortuj:
Wyświetlam 123 wyniki
Wyświetlam 123 wyniki
Powrót
Kolekcja nadrzędna: Pałac Kultury | 1962–1980 | CK Zamek
Informacje / metadane