Schron łączności kolejowej | 1944, 2016 | PKP S.A., Bogusław Musielak

zamknij wstęp
do kolekcji
Schron łączności kolejowej | 1944, 2016 | PKP S.A., Bogusław Musielak

W centrum Poznania nieopodal skrzyżowania ulic: Kościuszki, Taczaka i Taylora, obok tzw. starej dyrekcji kolei i Collegium Altum Uniwersytetu Ekonomicznego stoi schron z czasów II wojny światowej. Został wybudowany w końcu 1944 roku i miał ochraniać ważny węzeł łączności kolejowej systemu BASA (Bahnselbstanschlussanlage). Był to niezależny, automatyczny system łączności telefonicznej stworzony z myślą o niemieckich przewozach kolejowych uruchomiony w 1928 roku. Podstawę techniczną systemu stanowił opracowany przez firmę Siemens & Halske sprzęt w nowej na owe czasy technologii. W latach 30. XX wieku BASA umożliwiał skoordynowanie niemieckiej sieci przewozów kolejowych, a w czasie II wojny światowej objął zasięgiem całą okupowaną Europę. Centralne sterowanie ruchem kolejowym umożliwiało szybkie i sprawne przemieszczanie wojsk, sprzętu i zaopatrzenia wojskowego. Ze względu na zagrożenie nalotami alianckimi ważne węzły łączności kolejowej umieszczane były w specjalnych schronach. Budowa takiego schronu w Poznaniu świadczy o ważnej roli poznańskiego węzła kolejowego w przewozach transportowych III Rzeszy.
Poznański schron ma trzy kondygnacje. Na najniższej znaleźć się miała infrastruktura techniczna: maszynownia, akumulatorownia, silnik spalinowy z agregatem prądotwórczym, komora powietrzna i kablownia, pierwsze piętro zajęły urządzenia centrali telefonicznej, dalekopisu i pomieszczenie radiooperatora, a ostatnia kondygnacja przeznaczona była dla personelu obsługującego centralę. Zbliżający się koniec wojny spowodował, że Niemcy nie zdążyli budowli w pełni wyposażyć. Po wojnie schron przejęły polskie koleje. Początkowo znajdował się w nim magazyn, później pełnił funkcje związane z obroną cywilną. Jego wyposażenie miało zapewniać możliwość kierowania obroną cywilną PKP w przypadku konfliktu wynikającego z ówczesnych napiętych relacji między Związkiem Radzieckim a USA, ale miał być także miejscem schronienia dla 300 osób w czasie klęsk żywiołowych, awarii i katastrof.
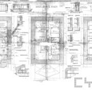
Niewielka, ale wyjątkowa kolekcja składa się z siedmiu rysunków projektowych z 1944 roku, które przedstawiają zewnętrzną bryłę schronu i szczegółowe plany kolejnych kondygnacji z wymiarami, opisami użytych materiałów, przeznaczeniem poszczególnych pomieszczeń i zaznaczonymi kanałami technicznymi. Dopełniają ją współczesne rysunki i fotografie schronu i jego wnętrza.

Bogusław Musielak, Magdalena Grzelak-Grosz

Projekty zostały opublikowane na CYRYLU dzięki Januszowi Konopińskiemu, długoletniemu pracownikowi działu łączności na kolei, który wespół z Bogusławem Musielakiem pomagał w opracowaniu kolekcji.
Sortuj:
Wyświetlam 41 wyników
Wyświetlam 41 wyników
Informacje / metadane